Ufficio in affitto

Napoli, Via Giuseppe Orsi - Vomero Medaglie D'Oro
€ 650 / mese
Prezzo aggiornato
1 locale 1 locale
40 Mq 40 Mq
1 bagno 1 bagno

Ufficio in affitto

Napoli, Via Giuseppe Orsi - Vomero Medaglie D'Oro

Descrizione annuncio

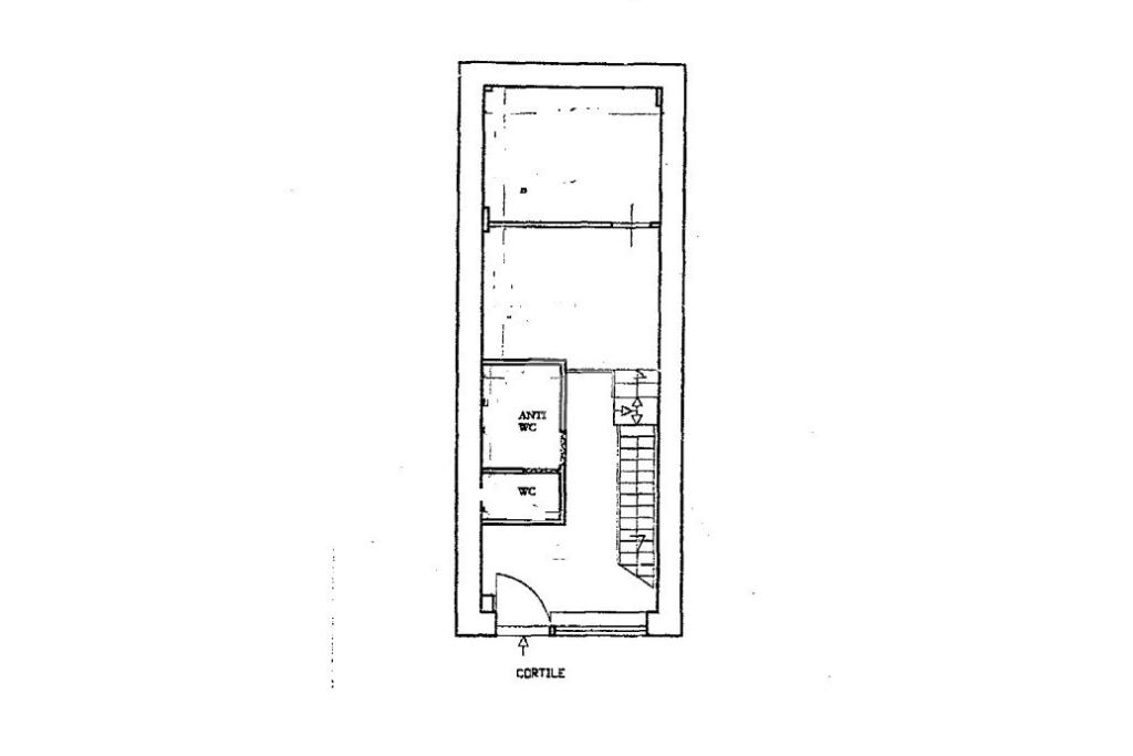
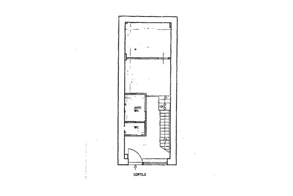
Tecnocasa Impresa Vomero propone in affitto, in Via Giuseppe Orsi, nelle immediate adiacenze di Piazza Medaglie D'Oro, un ufficio di 40 mq posto al piano terra interno cortile.

L'immobile si presenta in buone condizioni, pronto ad accogliere la vostra attività.

La posizione strategica garantisce un'ottima visibilità e un facile accesso, grazie alla vicinanza ai principali servizi e trasporti pubblici.

L'ambiente interno è ben distribuito, offrendo la possibilità di personalizzare gli spazi secondo le proprie esigenze professionali.

Approfittate di questa opportunità per insediare il vostro ufficio in una delle aree più richieste del Vomero.

Per ulteriori informazioni può contattarci telefonicamente o tramite whatsapp allo 081-0143780

Un nostro agente sarà pronto a rispondere alle vostre domande con professionalità e cortesia.

Seguici anche sulla pagina Facebook Agenzia Tecnocasa per l'Impresa Napoli Vomero.

Mostra tutto

Nelle vicinanze

Trasporto pubblico Trasporto pubblico
Medaglie d'oro
Medaglie d'oro
100 m
Salvator Rosa
Salvator Rosa
450 m
Napoli Montesanto
Napoli Montesanto
1,2 Km
Montesanto
Montesanto
1,3 Km
ANM - Capolinea Stazione Marittima
ANM - Capolinea Stazione Marittima
2,4 Km
Scuole Scuole
Scuola Primaria Statale ''S. Ruotolo''
240 m
Scuola Elementare M. Piscicelli
320 m
Scula Media D'Ovidio Nicolardi
630 m
Scuole
660 m
Scuola Elementare Vanvitelli
670 m
Farmacia Farmacia
Farmacia De Tommasis
290 m
Farmacia
340 m
Municinò
530 m
Farmacia Laterza
540 m
Larizza Paolo Antonio
630 m
Ospedali Ospedali
Ospedale Pediatrico Santobono-Pausillipon
260 m
ex Ospedale Clinico Gesù e Maria
1,0 Km
Ospedale dei Pellegrini
1,4 Km
IRCCS Fondazione Pascale - Day Hospital
1,4 Km
IRCCS Fondazione Pascale - Degenze
1,5 Km
Supermercati Supermercati
Carrefour Via Orsi
10 m
Carrefour Via Solario
110 m
Carrefour
150 m
Carrefour Express
220 m
Conad
230 m
Negozi Negozi
Grieco
420 m
La Focaccia dal 1962
540 m
Alysa Borse e Accessori
770 m
Pasticceria Settembre
780 m
Negozi
830 m
Bar Bar
Bar Maria
130 m
El bocadito
240 m
Caffetteria Bernini
420 m
Bar Michelangelo
430 m
Doc Pub
510 m
Ristoranti Ristoranti
La Piazzetta
160 m
Rosticceria La Padella
260 m
Pizzeria Da Michele
430 m
Pizzaioli Napoletani Di Origine Protetta
460 m
Antica Cucina Napoletana
490 m
Mostra tutto

Caratteristiche

Rif.:
61137024
Piano:
Terra di 6
Totale piani:
6
Condizionamento:
Autonomo
Ascensore:
No
Riscaldamento:
Autonomo
Mostra tutto
Prezzo Prezzo
€ 650 / mese
Spese annue Spese annue
€ 120

Altre caratteristiche

Descrizione dei locali
Bagno Con Finestra

Classe Energetica

G
G
G
G
G
G
G
G
G
EP globale non rinnovabile:
175.00 kW h/m² anno
EP globale rinnovabile:
175.00 kW h/m² anno
EP invernale del fabbricato:
EP estiva del fabbricato:
Anno di costruzione:
1960
Riscaldamento:
Autonomo
Tipo impianto:
Ad aria
Tipo alimentazione:
Aria

Prezzo ridotto di €1 (8%%)

Ti interessa visionare l'immobile?

Fissa un appuntamento  Fissa un appuntamento

Richiedi informazioni

Clicca su Leggi per aprire l'informativa
* Questi campi sono obbligatori
Affiliato
Trade Immobiliare Srl
Via Francesco Cilea, 7 80128 Napoli (NA)

Il nostro staff


  • Roberta Ciabò
    Coordinatrice

  • Antonio De Stasio
    Affiliato
Via Francesco Cilea, 7 80128 Napoli (NA)
Zona: Napoli - Vomero -Zona Collinare
Mostra su mappa
Orari: dal lunedì al venerdì dalle ore 9:00 alle ore 20:00 - sabato chiusura 18:00
Affiliato
Trade Immobiliare Srl
Via Francesco Cilea, 7 80128 Napoli (NA)

2026 Tecnocasa Franchising S.p.A. - P. IVA 08365160152 - Via Monte Bianco 60/A 20089 Rozzano (MI). Ogni agenzia ha un proprio titolare ed è autonoma. Privacy policy | Policy utilizzo | Cookie policy